

REZIDENCE POLNÁ je ideální volbou. Bydlení v jedné z nejlukrativnějších lokalit v Polné, v klidné části obce, ale pár kroků od centra města. Město Polná má veškerou občanskou vybavenost a investuje nemalé finanční prostředky do svého rozvoje. Dle schválené zastavovací studie vznikne v této lokalitě 21 samostatných parcel k individuální výstavbě, dále zde vzniknou 4 bytové domy celkem o 52 bytových jednotkách a dále řadové rodinné domy ve čtyřech blocích. Celá lokalita bude mít dostatek zeleně, parkovacích stání, bude zde dětské hřiště či odpočinkové zóny.
Žijte v nádherné lokalitě REZIDENCE POLNÁ a "ve svém".










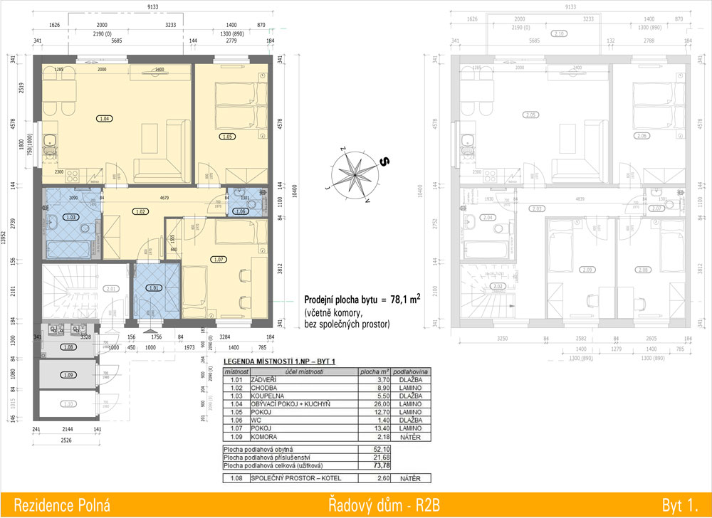
V přízemí je situován 78 m2 byt s dispozicí 3kk. V bytě je prostorné zádveří vhodné pro vestavěné skříně. Za dominantu bytu považujeme obytný prostor s kuchyňským koutem o rozloze 26 m2 a podlahovým topením, z něhož se francouzským oknem dostaneme na zahrádku o velikosti až 150 m2. Rozměrná koupelna je vybavena umyvadlem, vanou, přípravou pro pračku se sušičkou a podomítkovým WC. Na konci chodby, mezi pokojem a ložnicí, je ještě jedna toaleta s umývátkem.

Jedná se o byt v 1.patře o velikosti 92 m2. Vstupem z přízemí, kde je velkorysé zádveří, se po masivních bukových schodech dostanete do svého bytu v patře. Pod schodištěm je umístěna vnitřní komora. Byt disponuje velkou koupelnou s umyvadlem, vanou, podomítkovým WC, přípravou pro pračku se sušičkou a samostatnou toaletou s umývátkem na chodbě. 26 m2 z bytu náleží obývacímu pokoji s kuchyňským koutem a podlahovým topením, který si můžete díky francouzskému oknu zvětšit o prostor 7 m2 balkonu. Další součástí bytu jsou 3 pokoje vhodné jako např. ložnice a dětské pokoje.
